NEUBAUPROJEKT: 10 moderne Eigentumswohnungen in schloss neuhaus am schloßpark

Exklusives Wohnen am Schloßpark – Neubau-Eigentumswohnungen in Bestlage von Paderborn

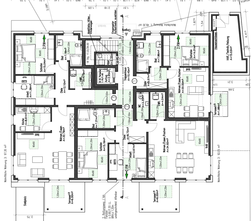
In erstklassiger Lage der Hermann-Löns-Straße 27 realisieren wir ein exklusives Neubauprojekt mit insgesamt 10 modernen Eigentumswohnungen.

Hier trifft zeitlose Architektur auf nachhaltige Bauweise. Unser Projekt bietet für jeden Lebensentwurf den passenden Raum: von der großzügigen Gartenwohnung mit privatem Grünanteil bis hin zur lichtdurchfluteten Etagenwohnung mit Balkon. Profitieren Sie von einer erstklassigen Infrastruktur, der direkten Nähe zum Schloßpark und modernster Energieeffizienz.

Sichern Sie sich jetzt Ihr neues Eigenheim in einer der begehrtesten Lagen von 33104 Paderborn.

Kontakt aufnehmen

Die Ausstattung: Qualität im Detail

Unsere Wohnungen in der Hermann-Löns-Straße werden nach dem neuesten Stand der Technik und unter Verwendung hochwertiger Materialien errichtet:

  • Energiestandard: KfW-Effizienzhaus (Klimafreundlicher Neubau) für minimalen Energieverbrauch.
  • Heizsystem: Nachhaltige Luft-Wasser-Wärmepumpe in Kombination mit einer einzeln regulierbaren Fußbodenheizung.
  • Licht & Luft: Großzügige, teils bodentiefe Fenster mit 3-fach-Isolierverglasung und elektrischen Rollläden an allen Fenstern.
  • Interieur: Edles Echtholzparkett oder moderne Design-Fliesen nach Wahl; glatt verputzte Wände für ein modernes Wohnambiente.
  • Barrierefreiheit: Bequemer Zugang zu allen Etagen durch einen modernen Personenaufzug.
  • Außenbereich: Jede Wohnung verfügt über eine großzügige Terrasse mit Gartenanteil, einen Balkon oder eine Dachterrasse.
  • Parken: Eigene PKW-Stellplätze (optional mit Vorbereitung für E-Ladestationen) direkt am Objekt.

Fördermöglichkeiten: Ihr finanzieller Vorteil

Durch die nachhaltige Bauweise profitieren Sie von attraktiven staatlichen Förderungen:

  • Zinsgünstige KfW-Darlehen: Nutzen Sie das Programm 297/298 (Klimafreundlicher Neubau) mit deutlich reduzierten Zinssätzen gegenüber der Hausbank.
  • Für Kapitalanleger: Profitieren Sie von der neuen degressiven AfA oder der Sonderabschreibung gemäß § 7b EStG für neu geschaffenen Mietwohnraum.
  • Zukunftssicherheit: Da es sich um einen Erstbezug handelt, fallen in den nächsten Jahrzehnten keine Sanierungskosten an. Zudem gilt die 5-jährige Gewährleistung nach BGB.

Die Lage: Wohnen, wo Paderborn am schönsten ist

Schloß Neuhaus zählt zu den begehrtesten Wohnlagen Paderborns. Die Hermann-Löns-Straße 27 bietet die perfekte Balance zwischen Ruhe und urbaner Anbindung:

  • Natur & Freizeit: Das historische Residenzschloss mit seinem weitläufigen Schloßpark und den angrenzenden Lippesee-Freizeitanlagen ist nur einen kurzen Spaziergang entfernt.
  • Nahversorgung: Supermärkte, Bäckereien, Ärzte und Apotheken im Zentrum von Schloß Neuhaus sind fußläufig oder mit dem Rad in wenigen Minuten erreichbar.
  • Anbindung: Eine Bushaltestelle mit direkter Verbindung in die Paderborner Innenstadt befindet sich in unmittelbarer Nähe. Die Autobahnen A33 und A44 sind schnell erreichbar.
  • Umfeld: Die Nachbarschaft ist geprägt von einer gepflegten Wohnbebauung und viel Grün – ideal für Singles, Paare und Senioren gleichermaßen.

Galerie & Informationen

Alles auf einen Blick

Objektdaten

Details zur Wohnung:

  • Wohnfläche: 45 m² bis 110 m²
  • Zimmer: 10 exklusive Eigentumswohnungen mit 2 bis 3 Zimmern
  • Einheiten: 10 exklusive Eigentumswohnungen
  • Highlights: Balkone, Terrassen mit Gartenanteil oder Dachterrassen
  • Parken: Tiefgaragenstellplätze / Außenstellplätze vorhanden
  • Fertigstellung: Voraussichtlich 04.2027

Weitere Objekte

Kugelbreite 24
33154 Salzkotten
Deutschland

05258 97 440 32 info@newlive-pb.de

Allgemein

Rechtliches

© 2026 new live Bauträger GmbH - Website erstellt von owl-vision-media.de

© 2026 new live Bauträger GmbH - Website erstellt von owl-vision-media.de